090-3794-9052

\沖縄にお住まいの方注目/ちょっとした修繕から思い切ったリフォームまで、なんでもいたします!

KOUKEN
KOUKENの画像
KOUKENの画像
KOUKENの画像
KOUKENの画像

About us

KOUKENの紹介写真_1枚目

安心の価格で住まいの困りごとをちゃちゃっと解決します☆

Our Values

リフォーム全般、水回り設備関係のことは迷わず当社へ!の写真

リフォーム全般、水回り設備関係のことは迷わず当社へ!

あなたの生活全体に貢献します☆の写真

あなたの生活全体に貢献します☆

信頼を獲得し続けている秘訣は・・・の写真

信頼を獲得し続けている秘訣は・・・

リフォーム全般、水回り設備関係のことは迷わず当社へ!の写真

リフォーム全般、水回り設備関係のことは迷わず当社へ!

あなたの生活全体に貢献します☆の写真

あなたの生活全体に貢献します☆

信頼を獲得し続けている秘訣は・・・の写真

信頼を獲得し続けている秘訣は・・・

Price & Service

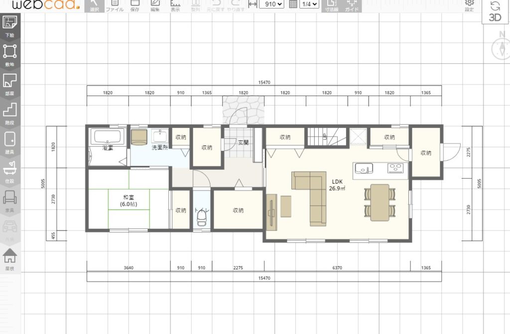
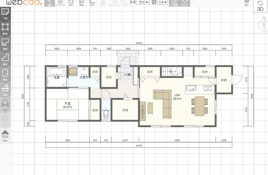
  • 間取り変更の画像
    リフォーム

    フルリフォーム(間取り変更)

  • キッチン取り替えの画像
    キッチンリフォーム

    キッチンのリフォーム

  • ユニットバスの画像
    お風呂リフォーム

    浴室のリフォーム